Anklamer Straße 25, 10119 Berlin

Anklamer Straße 25

10119 Berlin – Mitte

Objekt

11 Einheiten
ab 282.000,00 € Preis
36,9 – 111,3 m² Fläche
1 – 4 Zimmer

Provision: 3 % des Kaufpreises zzgl. der gesetzlichen MwSt.

Anklamer Straße 25, 10119 Berlin

10119 Berlin – Mitte

Anklamer Straße 25

Zum Verkauf stehen mehrere gut erhaltene Altbauwohnungen in einem zentralen Berliner Stadtteil, die sich durch großzügige Grundrisse und attraktive Raumaufteilungen auszeichnen. Die meisten Wohnungen sind bereits mit Möbeln und modernen Einbauküchen ausgestattet und bieten sich sowohl für Selbstnutzer als auch für Kapitalanleger an. Das Gemeinschaftseigentum, einschließlich Treppenhäuser, Keller und Fassade, ist in gutem Zustand und trägt zur langfristigen Wertstabilität des Objekts bei.

Anklamer Straße 25, 10119 Berlin
Logo BIDDEX Immobiliengesellschaft mbH

Ausstattung

Die zum Verkauf stehenden Wohnungen überzeugen mit lichtdurchfluteten Räumen und größtenteils hochwertigen Böden. Die meisten Einheiten sind bereits möbliert und mit modernen Einbauküchen ausgestattet, inklusive E-Geräten. Die Badezimmer sind stilvoll gefliest und bieten entweder eine Badewanne oder Dusche und sind teilweise sogar tagesbelichtet In den Treppenhäusern sorgt ein eleganter Sisalteppich für ein angenehmes Ambiente. Das Gebäude ist gut gepflegt, einschließlich der Fassade, des Kellers und dem Rest des Gemeinschaftseigentums.

  • Helle, gut durchdachte Räume mit hochwertigen Böden
  • Möbliert und ausgestattet mit modernen Einbauküchen, inklusive E-Geräten
  • Stilvolle Badezimmer mit Badewanne oder Dusche, teilweise tagesbelichtet
  • Eleganter Sisalteppich in den Treppenhäusern für angenehmes Ambiente
  • Gut gepflegtes Gebäude, inklusive Fassade, Keller und Gemeinschaftseigentum
Logo BIDDEX Immobiliengesellschaft mbH

Lage & Umgebung

Die Anklamer Straße 25 liegt im Herzen von Berlin-Mitte und bietet eine ideale Kombination aus urbanem Leben und historischem Flair. Die Umgebung verfügt über eine ausgezeichnete Infrastruktur mit zahlreichen Geschäften, Restaurants und kulturellen Einrichtungen. Erholungsorte wie der Volkspark am Weinberg und die Spree laden zudem zu entspannenden Spaziergängen ein.

  • Zentrale Lage in Berlin-Mitte mit urbanem Flair und historischem Charme
  • Hervorragende Infrastruktur mit Geschäften, Restaurants und kulturellen Angeboten
  • Sehr gute Anbindung an öffentliche Verkehrsmittel und schnelle Erreichbarkeit aller Stadtteile
  • Naherholungsmöglichkeiten im Volkspark am Weinberg und an der Spree
  • Attraktives Wohnumfeld mit lebendiger Atmosphäre und vielseitigem Freizeitangebot

Anklamer Straße 25, 10119 Berlin

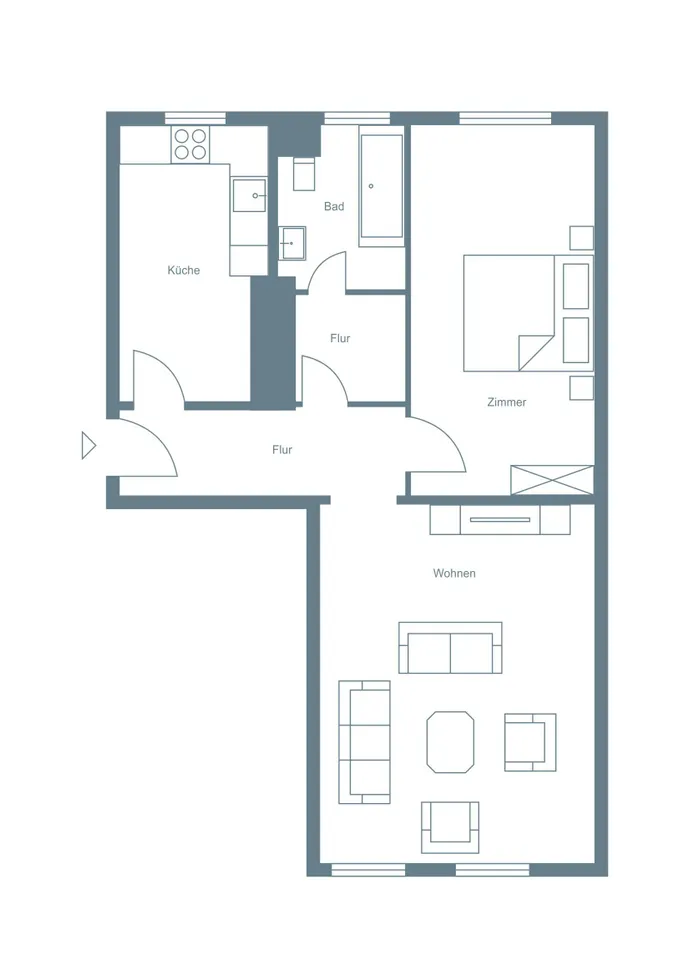
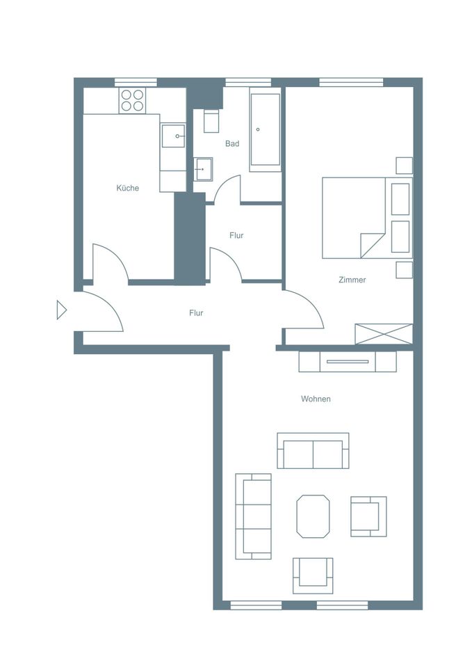
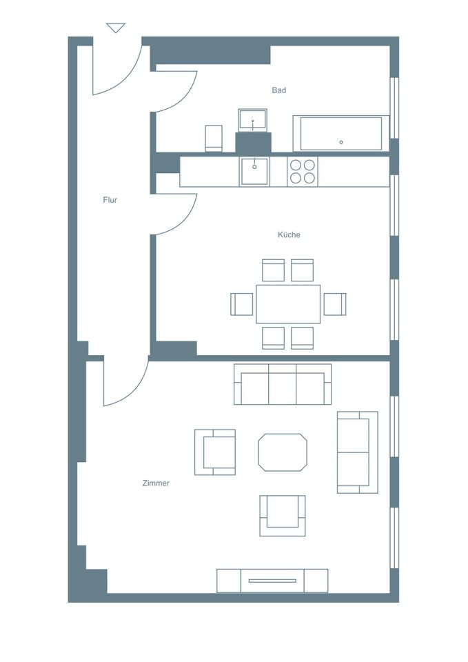
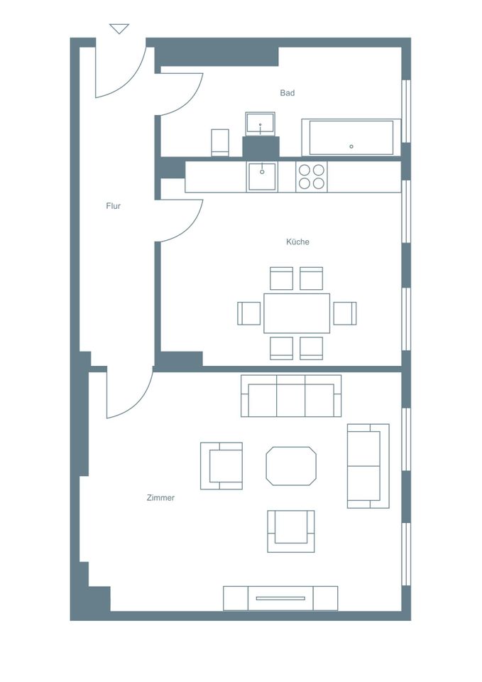
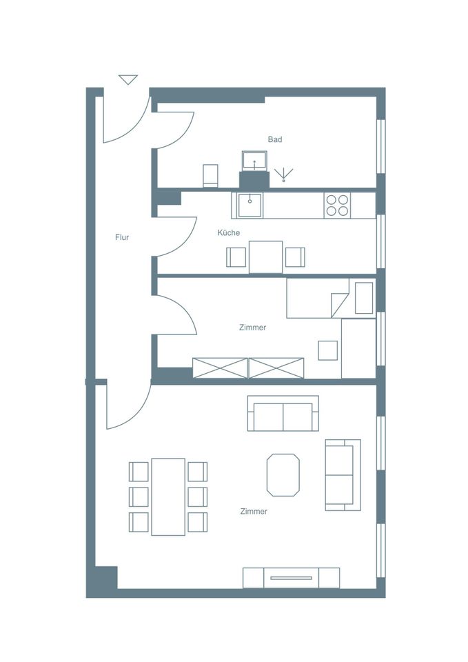
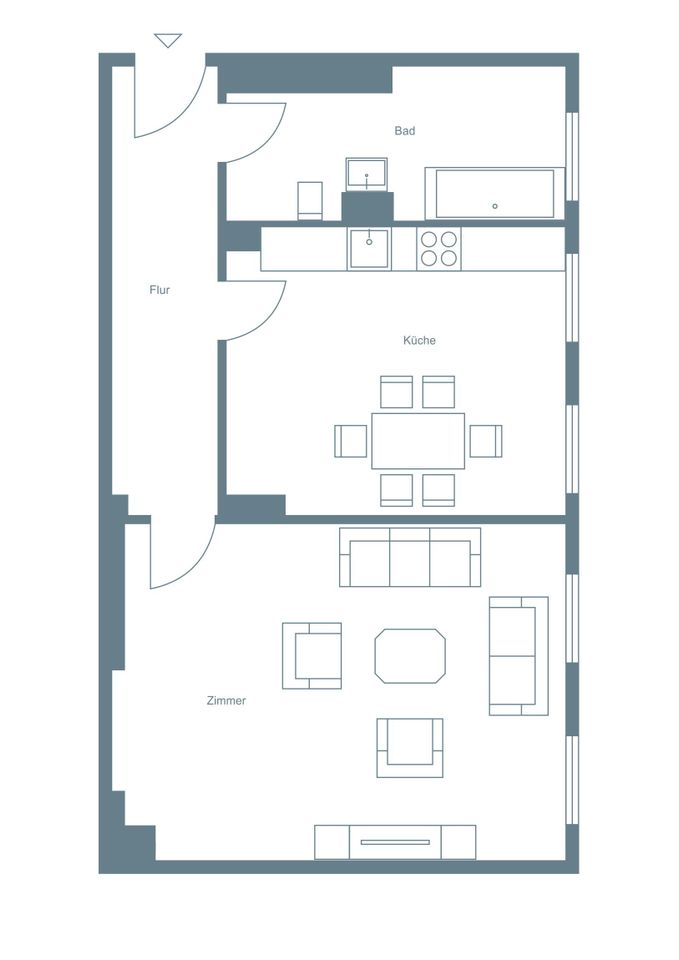
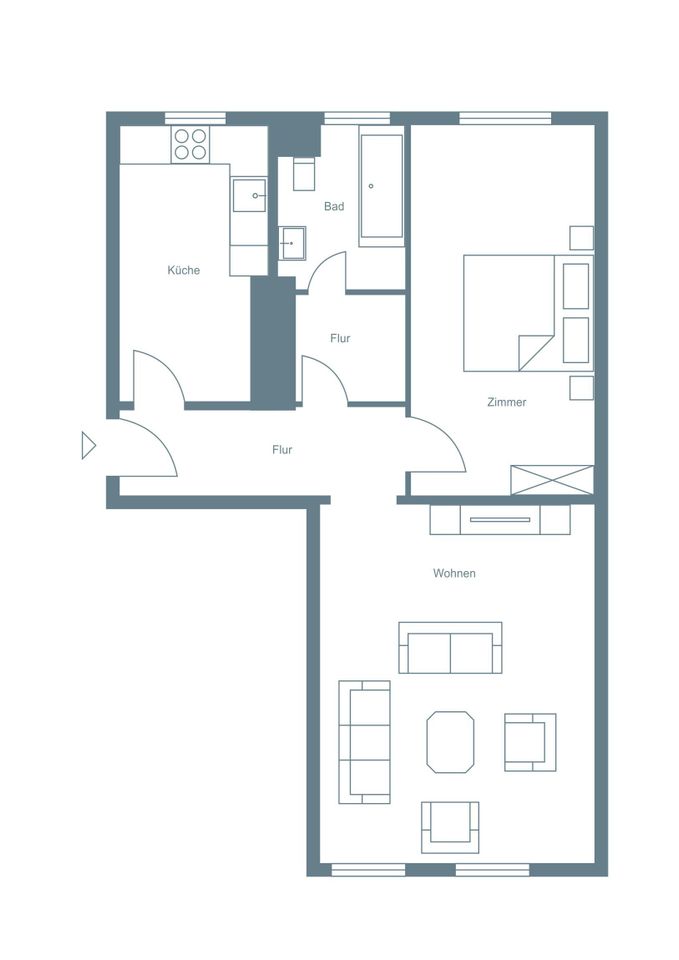
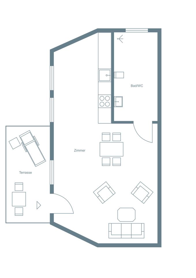
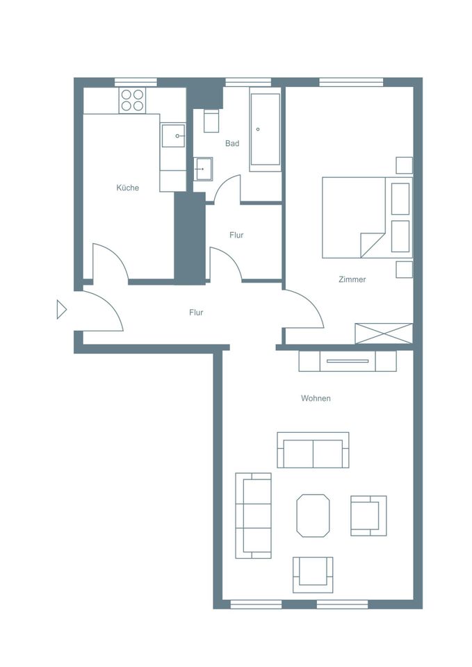
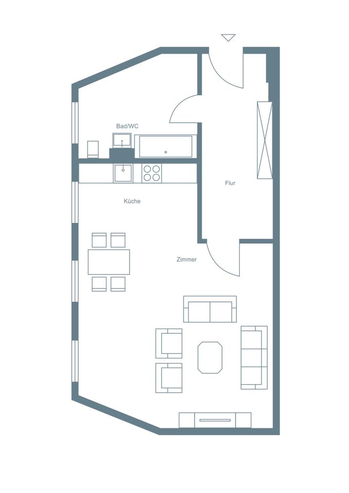
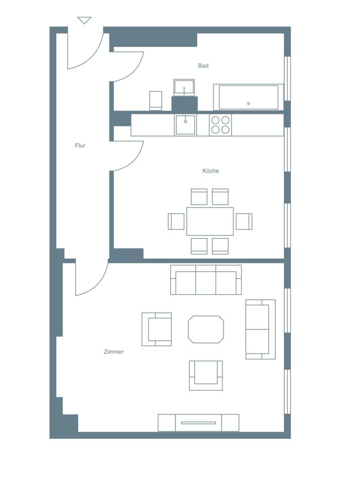
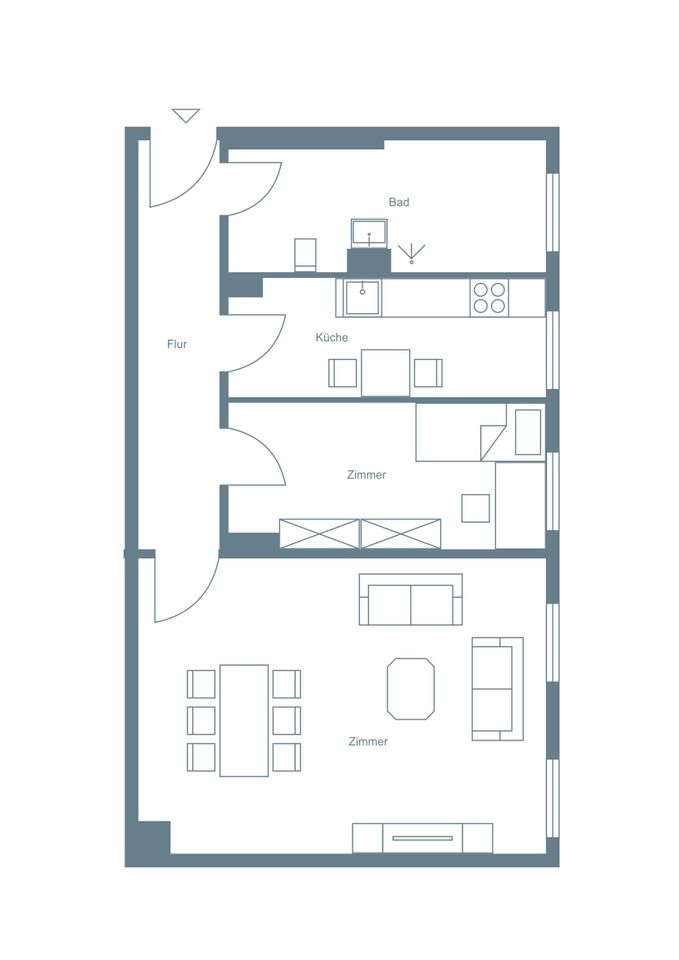
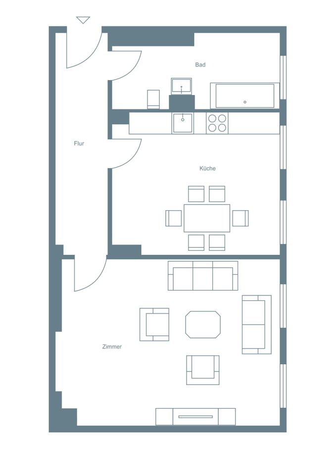
Die Einheiten

Einheit WE04 Etagenlage VH 2. OG links Zimmer 2 Wohnfläche ca. 55,4 m² Preis 415.000 € Status Verfügbar
Einheit WE06 Etagenlage VH 3. OG links Zimmer 2 Wohnfläche ca. 55,4 m² Preis 369.000 € Status Verfügbar
Einheit WE06+WE07 Etagenlage VH 3. OG links Zimmer 4 Wohnfläche ca. 111,3 m² Preis 788.000 € Status Verfügbar
Einheit WE07 Etagenlage VH 3. OG rechts Zimmer 2 Wohnfläche ca. 55,9 m² Preis 419.000 € Status Verfügbar
Einheit WE08 Etagenlage SFL EG rechts Zimmer 1 Wohnfläche ca. 36,9 m² Preis 282.000 € Status Verfügbar
Einheit WE11 Etagenlage SFL 4. OG rechts Zimmer 1 Wohnfläche ca. 37,5 m² Preis 310.000 € Status Verfügbar
Einheit WE12 Etagenlage SFL 5. OG rechts Zimmer 1 Wohnfläche ca. 37,5 m² Preis 310.000 € Status Verfügbar
Einheit WE14 Etagenlage QG 1. OG links Zimmer 2 Wohnfläche ca. 49,3 m² Preis 369.000 € Status Verfügbar
Einheit WE15 Etagenlage QG 2. OG links Zimmer 2 Wohnfläche ca. 49,6 m² Preis 369.000 € Status Verfügbar
Einheit WE16 Etagenlage QG 3. OG links Zimmer 2 Wohnfläche ca. 51,5 m² Preis 334.000 € Status Verfügbar
Einheit WE19 Etagenlage SFL 1. OG rechts Zimmer 1 Wohnfläche ca. 37,5 m² Preis 310.000 € Status Verfügbar

Provision: 3 % des Kaufpreises zzgl. der gesetzlichen MwSt.