10435 Berlin – Prenzlauer Berg
Objekt
Provision: 3 % des Kaufpreises zzgl. der gesetzlichen MwSt.
10435 Berlin – Prenzlauer Berg
Choriner Straße 61
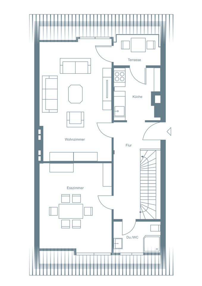
Willkommen in der Choriner Straße 61, Berlin, im begehrten Prenzlauer Berg. Dieser Altbau besticht durch seinen historischen Charme, vom Stuck im Eingangsbereich bis zu den teilweise stuckverzierten Wohnungen. Das gepflegte Gemeinschaftseigentum und die hochwertigen Dielenböden und Parkettböden in den Wohnungen verleihen diesem Zuhause zeitlose Eleganz.
Beeindruckt mit historischem Flair und zeitgemäßem Komfort. Ein eleganter Sisal-Teppich ziert das Treppenhaus, während Stuckverzierungen den Eingangsbereich schmücken. Teilweise stuckverzierte Wohnungen verleihen jedem Zuhause einen Hauch von Luxus. Das gepflegte Gemeinschaftseigentum und die hochwertigen Dielenböden sowie Parkettböden in den Wohnungen bieten zeitlose Eleganz und erstklassige Qualität.
Die Immobilie befindet sich in einer begehrten Lage im Herzen des Prenzlauer Bergs, im Kollwitzkiez. Sie profitiert von ihrer Nähe zum lebendigen Mauerpark, dem malerischen Zionkirchplatz und dem quirligen Rosenthaler Platz. Der U-Bahnhof Rosenthaler Platz bietet exzellente Verkehrsanbindungen und erleichtert die Erkundung Berlins.
Choriner Straße 61, 10435 Berlin
| Einheit | Etagenlage | Zimmer | Fläche | Preis | Status | Grundriss | Exposé anfordern |
|---|---|---|---|---|---|---|---|
| Einheit TE01 | Etagenlage VH EG rechts | Zimmer 2 | Gesamtfläche ca. 44,6 m² | Preis – | Status Verkauft | ||
| Einheit TE02 | Etagenlage VH EG links | Zimmer 4 | Gesamtfläche ca. 120,6 m² | Preis – | Status Verkauft | ||
| Einheit TE03 | Etagenlage QG EG links | Zimmer 4 | Wohnfläche ca. 68,3 m² | Preis 525.000 € | Status Verfügbar |
Exposé anfordern
Ihre Objektanfrage„*“ zeigt erforderliche Felder an |
|
| Einheit TE04 | Etagenlage QG EG links | Zimmer 2 | Wohnfläche ca. 55,2 m² | Preis – | Status Verkauft | ||
| Einheit TE05 | Etagenlage QG EG rechts | Zimmer 3 | Wohnfläche ca. 69,1 m² | Preis – | Status Verkauft | ||
| Einheit WE06 | Etagenlage VH 1.OG rechts | Zimmer 3 | Wohnfläche ca. 85,8 m² | Preis – | Status Verkauft | ||
| Einheit WE08 | Etagenlage SFL 1.OG links | Zimmer 1 | Wohnfläche ca. 33,7 m² | Preis – | Status Verkauft | ||
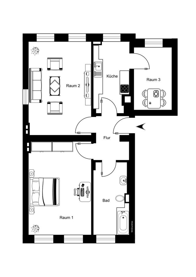
| Einheit WE09 | Etagenlage QG 1.OG 2.rechts | Zimmer 3 | Wohnfläche ca. 71,6 m² | Preis 449.000 € | Status Verfügbar |
Exposé anfordern
Ihre Objektanfrage„*“ zeigt erforderliche Felder an |
|
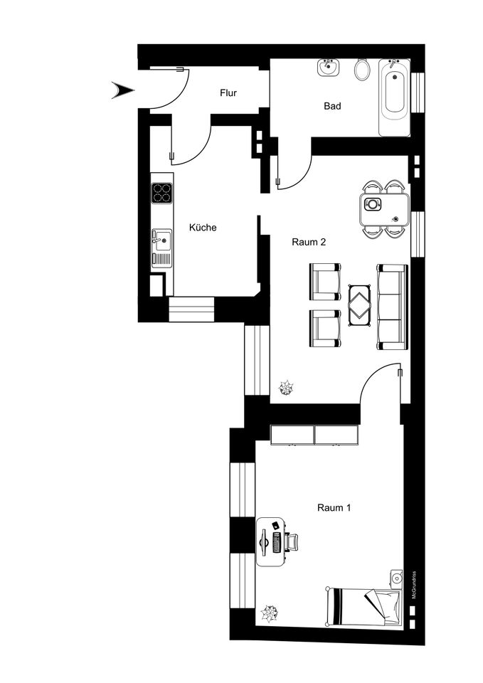
| Einheit WE10 | Etagenlage QG 1. OG 1. rechts | Zimmer 2 | Wohnfläche ca. 59,2 m² | Preis 435.000 € | Status Verfügbar |
Exposé anfordern
Ihre Objektanfrage„*“ zeigt erforderliche Felder an |
|
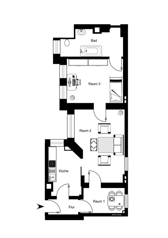
| Einheit WE11 | Etagenlage QG 1.OG links | Zimmer 3 | Wohnfläche ca. 83,6 m² | Preis 610.000 € | Status Verfügbar |
Exposé anfordern
Ihre Objektanfrage„*“ zeigt erforderliche Felder an |
|
| Einheit WE12 | Etagenlage VH 2.OG links | Zimmer 3 | Wohnfläche ca. 87,2 m² | Preis – | Status Verkauft | ||
| Einheit WE14 | Etagenlage SFL 2.OG links | Zimmer 1 | Wohnfläche ca. 33,8 m² | Preis – | Status Verkauft | ||
| Einheit WE15.1 | Etagenlage SFL 2.OG rechts | Zimmer 1 | Wohnfläche ca. 29,4 m² | Preis – | Status Verkauft | ||
| Einheit WE17 | Etagenlage QG 2.OG links | Zimmer 2 | Wohnfläche ca. 74,2 m² | Preis – | Status Verkauft | ||
| Einheit WE18 | Etagenlage VH 3.OG links | Zimmer 3 | Wohnfläche ca. 88,2 m² | Preis – | Status Verkauft | ||
| Einheit WE19 | Etagenlage VH 3.OG rechts | Zimmer 3 | Wohnfläche ca. 89,5 m² | Preis – | Status Verkauft | ||
| Einheit WE20 | Etagenlage SFL 3.OG links | Zimmer 1 | Wohnfläche ca. 33,9 m² | Preis – | Status Verkauft | ||
| Einheit WE22 | Etagenlage QG 3.OG 1. rechts | Zimmer 2 | Wohnfläche ca. 59,6 m² | Preis – | Status Verkauft | ||
| Einheit WE24 | Etagenlage VH 4.OG links | Zimmer 3 | Wohnfläche ca. 87,1 m² | Preis – | Status Verkauft | ||
| Einheit WE26 | Etagenlage SFL 4.OG links | Zimmer 1 | Wohnfläche ca. 34,1 m² | Preis – | Status Verkauft | ||
| Einheit WE27 | Etagenlage QG 4.OG 2. rechts | Zimmer 4 | Wohnfläche ca. 84,9 m² | Preis 549.000 € | Status Reserviert |
Exposé anfordern
Ihre Objektanfrage„*“ zeigt erforderliche Felder an |
|
| Einheit WE28 | Etagenlage QG DG rechts | Zimmer 4 | Wohnfläche ca. 110,5 m² | Preis – | Status Verkauft | ||
| Einheit WE29 | Etagenlage QG 4.OG / DG | Zimmer 5 | Wohnfläche ca. 137 m² | Preis – | Status Verkauft | ||
| Einheit WE30 | Etagenlage VH DG links | Zimmer 3 | Wohnfläche ca. 80 m² | Preis – | Status Verkauft | ||
| Einheit WE32 | Etagenlage QG DG rechts | Zimmer 3 | Wohnfläche ca. 81,1 m² | Preis – | Status Verkauft |
Provision: 3 % des Kaufpreises zzgl. der gesetzlichen MwSt.