10435 Berlin – Prenzlauer Berg
Objekt
Provision: 3 % des Kaufpreises zzgl. der gesetzlichen MwSt.
10435 Berlin – Prenzlauer Berg
Hagenauer Straße 3
Das charmante Altbauensemble in der Hagenauer Straße 3 vereint historischen Charakter mit modernem Wohnkomfort. Die gepflegte Fassade und die stilvollen Altbaudetails – hohe Decken, Stuckelemente und große Fenster – unterstreichen den zeitlosen Charme des Gebäudes. Zwei separate Aufgänge, im Vorderhaus und Seitenflügel, führen durch ein geschmackvoll mit Sisal-Teppich ausgelegtes Treppenhaus.
Das stilvolle Altbaugebäude vereint klassische Details mit modernem Komfort. Ein hochwertiger Sisal-Teppich schmückt das Treppenhaus, während der begrünte Innenhof Ruhe bietet. Hohe Decken, originale Stuckelemente und große Fenster verleihen den Wohnungen besonderen Charme. Einige Einheiten wurden aufwendig saniert und verbinden historischen Flair mit zeitgemäßem Wohnkomfort.
Die Immobilie liegt im beliebten Kollwitzkiez im Prenzlauer Berg, einer der lebendigsten Gegenden Berlins. Die zentrale Lage verbindet urbanes Flair mit historischem Charme.
Nur wenige Minuten vom Mauerpark entfernt, einem Hotspot für Kultur und Freizeit, können Sie hier den Flohmarkt besuchen oder sich inmitten von Straßenkünstlern entspannen.
In der Nähe befindet sich der malerische Zionskirchplatz, umgeben von historischen Gebäuden und Bäumen – ein beliebter Treffpunkt. Auch der Rosenthaler Platz mit zahlreichen Restaurants, Cafés und Boutiquen ist schnell erreichbar und bietet pulsierendes Stadtleben.
Hagenauer Straße 3, 10435 Berlin
| Einheit | Etagenlage | Zimmer | Fläche | Preis | Status | Grundriss | Exposé anfordern |
|---|---|---|---|---|---|---|---|
| Einheit WE02 | Etagenlage VH 1.OG rechts | Zimmer 2 | Wohnfläche ca. 71,7 m² | Preis – | Status Verkauft | ||
| Einheit WE04 | Etagenlage VH 2.OG rechts | Zimmer 2 | Wohnfläche ca. 72,1 m² | Preis – | Status Verkauft | ||
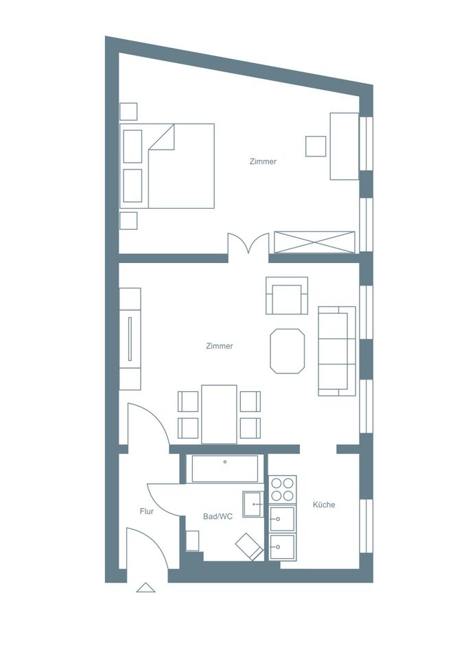
| Einheit WE05 | Etagenlage VH 3.OG links | Zimmer 3 | Wohnfläche ca. 82,2 m² | Preis 575.000 € | Status Verfügbar |
Exposé anfordern
Ihre Objektanfrage„*“ zeigt erforderliche Felder an |
|
| Einheit WE07 | Etagenlage VH 4.OG links | Zimmer 3 | Wohnfläche ca. 84,7 m² | Preis 599.000 € | Status Verfügbar |
Exposé anfordern
Ihre Objektanfrage„*“ zeigt erforderliche Felder an |
|
| Einheit WE08 | Etagenlage VH 4.OG rechts | Zimmer 2 | Wohnfläche ca. 73,8 m² | Preis 568.000 € | Status Verfügbar |
Exposé anfordern
Ihre Objektanfrage„*“ zeigt erforderliche Felder an |
|
| Einheit WE09 | Etagenlage SFL EG rechts | Zimmer 2 | Wohnfläche ca. 48,7 m² | Preis – | Status Verkauft | ||
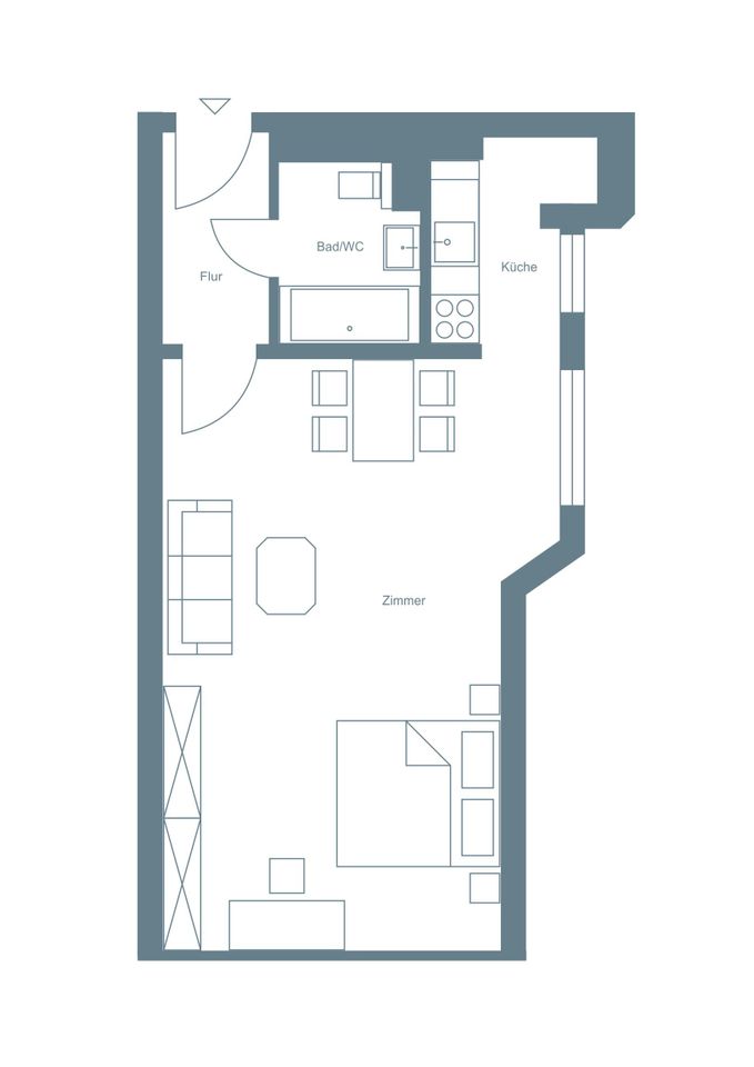
| Einheit WE10 | Etagenlage SFL 1.OG links | Zimmer 1 | Wohnfläche ca. 38,5 m² | Preis 269.000 € | Status Verfügbar |
Exposé anfordern
Ihre Objektanfrage„*“ zeigt erforderliche Felder an |
|
| Einheit WE12 | Etagenlage SFL 2.OG links | Zimmer 1 | Wohnfläche ca. 40,1 m² | Preis 309.000 € | Status Verfügbar |
Exposé anfordern
Ihre Objektanfrage„*“ zeigt erforderliche Felder an |
|
| Einheit WE13 | Etagenlage SFL 2.OG rechts | Zimmer 2 | Wohnfläche ca. 52,6 m² | Preis – | Status Verkauft | ||
| Einheit WE14 | Etagenlage SFL 3.OG links | Zimmer 1 | Wohnfläche ca. 39,6 m² | Preis 304.000 € | Status Verfügbar |
Exposé anfordern
Ihre Objektanfrage„*“ zeigt erforderliche Felder an |
|
| Einheit WE15 | Etagenlage SFL 3.OG rechts | Zimmer 2 | Wohnfläche ca. 52,6 m² | Preis – | Status Verkauft | ||
| Einheit WE16 | Etagenlage SFL 4.OG links | Zimmer 1 | Wohnfläche ca. 40,0 m² | Preis – | Status Verkauft | ||
| Einheit WE18 | Etagenlage VH EG links | Zimmer 5 | Wohnfläche ca. 141,3 m² | Preis 905.000 € | Status Verfügbar |
Exposé anfordern
Ihre Objektanfrage„*“ zeigt erforderliche Felder an |
Provision: 3 % des Kaufpreises zzgl. der gesetzlichen MwSt.