10437 Berlin – Prenzlauer Berg
Objekt
Provision: 3 % des Kaufpreises zzgl. der gesetzlichen MwSt.
10437 Berlin – Prenzlauer Berg
Schönhauser Allee 132
Das Ensemble strahlt großbürgerliche Eleganz aus, ergänzt durch eine moderne Komplettsanierung nach höchsten Standards. Das Objekt wird zur urbanen Oase mit eigenem Stil und Charakter. Die Jugendstil-Altbauten werden behutsam renoviert, wobei die Gründerzeit-Elemente betont werden. Das Dachgeschoss wird ausgebaut, inklusive einzigartiger Aufdachterrassen. Die Penthouse-Dachterrassen bieten atemberaubende Ausblicke über die Dächer Berlins. Die Penthouses sind geschmackvoll eingerichtet und verfügen über offene Wohnbereiche mit hochwertigen Materialien. Grillen, feiern und entspannen auf den Dächern wird zum Genuss.
Auch modernste Loftwohnungen mit teilweise Maisonettetypen sind Teil des Verkaufsprojektes.
Die exklusiven Wohnungen bieten teilweise eine Aufdachterrasse mit Strom- und Wasseranschlüssen sowie elektrischen Jalousien für Privatsphäre. Fußbodenheizung und die Option einer Klimaanlage sorgen für Komfort. Zudem kann zwischen zwei Echtholzböden gewählt werden. Die ruhige Innenhoflage verspricht Entspannung. Im Untergeschoss befindet sich eine Galerie mit beeindruckenden 8 Meter hohen Decken und Glaselementen, die ein helles Ambiente schaffen.
Ruhig und grün, aber mitten im Leben
Mitten im Szene-Kiez Prenzlauer Berg erwacht ein Gründerzeit-Altbau aus dem Dornröschenschlaf. Unter Federführung des Architekten entsteht ein grünes Refugium mit Charakter und Charme. Unter Erhalt zeittypischer Elemente wird es stilsicher und behutsam saniert – intelligente Grundrisse und moderne Annehmlichkeiten inklusive.
Urban und familien- freundlich, Ruheinsel und trotzdem mitten- drin: Dies ist der perfekte Ort, um sich zu Hause zu fühlen.
Hier im Herzen des Prenzlauer Bergs treffen sich Familien und Kreative, Alteingesessene und Zugezogene aus aller Welt. Es gibt Cafés, Restaurants, Geschäfte jeder Couleur und jede Menge Parks und Grünflächen zum Innehalten. Die Tram hält vor der Tür, S- und U-Bahn sind nur fünf Minuten entfernt. Kurzum: eine perfekte Infrastruktur für alle Bedürfnisse. Wer hier wohnt, lebt mittendrin – und doch ruhig und grün.
Schönhauser Allee 132, 10437 Berlin
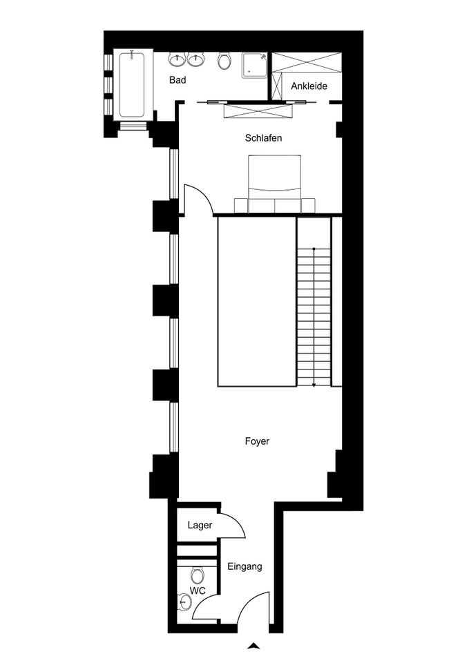
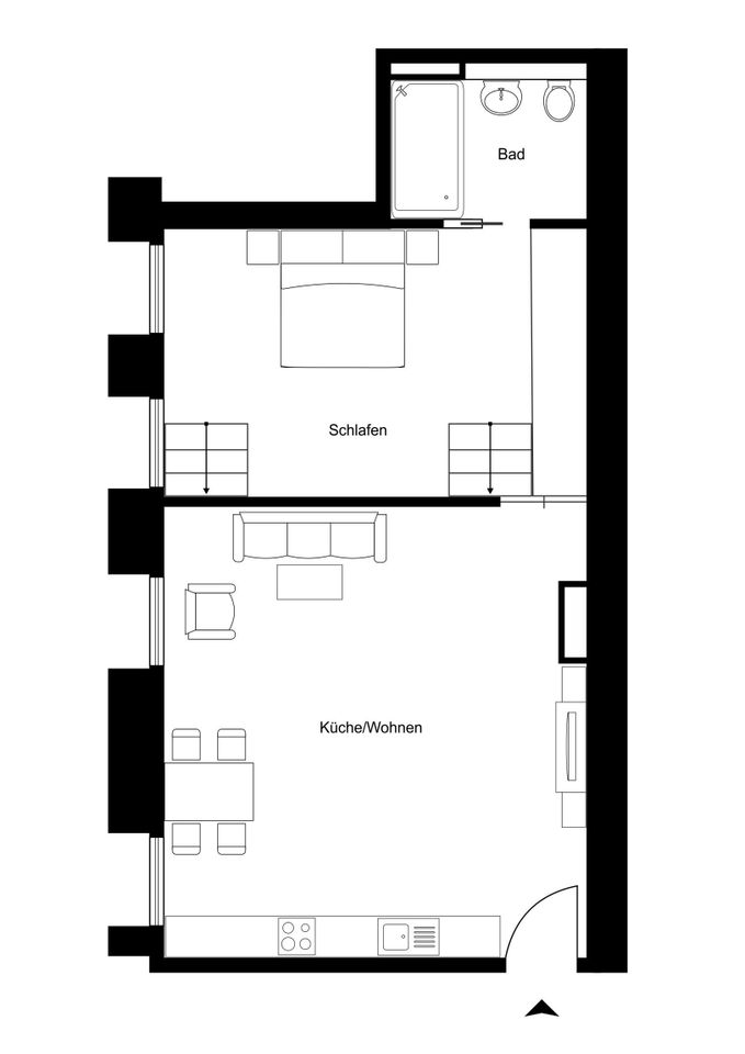
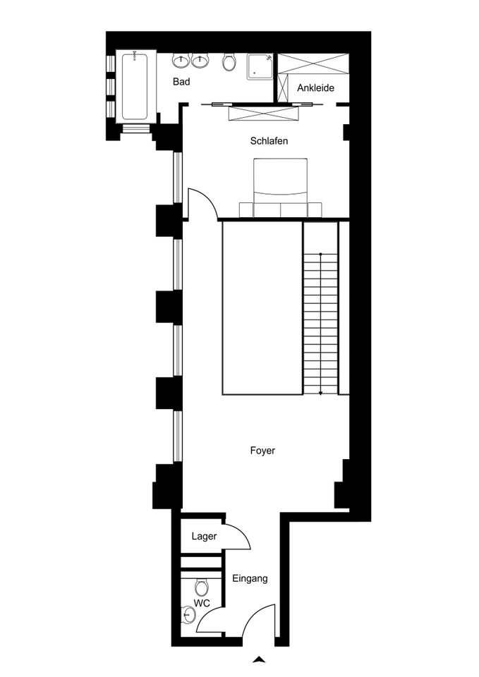
| Einheit | Etagenlage | Fläche | Baujahr | Preis | Status | Grundriss | Exposé anfordern |
|---|---|---|---|---|---|---|---|
| Einheit GE03 | Etagenlage VH EG 2. v. rechts | Gesamtfläche ca. 71,1 m² | Baujahr 1918 | Preis 384.156 € | Status Verfügbar |
Exposé anfordern
Ihre Objektanfrage„*“ zeigt erforderliche Felder an |
|
| Einheit GE05 | Etagenlage Innenhof Souterrain | Gesamtfläche ca. 193,3 m² | Baujahr 1918 | Preis 799.000 € | Status Verfügbar |
Exposé anfordern
Ihre Objektanfrage„*“ zeigt erforderliche Felder an |
|
| Einheit WE18 | Etagenlage HH KG+EG mi | Wohnfläche ca. 197,5 m² | Baujahr 1918 | Preis 1.490.000 € | Status Verfügbar |
Exposé anfordern
Ihre Objektanfrage„*“ zeigt erforderliche Felder an |
|
| Einheit WE19 | Etagenlage HH KG+EG re | Wohnfläche ca. 133,0 m² | Baujahr 1918 | Preis 990.000 € | Status Verfügbar |
Exposé anfordern
Ihre Objektanfrage„*“ zeigt erforderliche Felder an |
|
| Einheit WE19 | Etagenlage HH KG+EG re | Wohnfläche ca. 133,0 m² | Baujahr 1918 | Preis 990.000 € | Status Verfügbar |
Exposé anfordern
Ihre Objektanfrage„*“ zeigt erforderliche Felder an |
|
| Einheit WE28 | Etagenlage HH DG mi | Wohnfläche ca. 187,3 m² | Baujahr 1918 | Preis 1.829.000 € | Status Verfügbar |
Exposé anfordern
Ihre Objektanfrage„*“ zeigt erforderliche Felder an |
|
| Einheit WE28+WE29 | Etagenlage HH DG | Wohnfläche ca. 332,6 m² | Baujahr 1918 | Preis 3.228.000 € | Status Verfügbar |
Exposé anfordern
Ihre Objektanfrage„*“ zeigt erforderliche Felder an |
|
| Einheit WE29 | Etagenlage HH DG re | Wohnfläche ca. 145,3 m² | Baujahr 1918 | Preis 1.399.000 € | Status Verfügbar |
Exposé anfordern
Ihre Objektanfrage„*“ zeigt erforderliche Felder an |
|
| Einheit WE30 | Etagenlage SF EG links | Wohnfläche ca. 45,8 m² | Baujahr 1908 | Preis 329.500 € | Status Verfügbar |
Exposé anfordern
Ihre Objektanfrage„*“ zeigt erforderliche Felder an |
Provision: 3 % des Kaufpreises zzgl. der gesetzlichen MwSt.